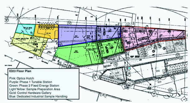
Optic Hutch Overview

The white X-ray beam produced by the machine is delivered to ID23-1 by an undulator U35 through the diamon Front End window. Optic devices located downstream in the optic hutch (also driven by the Personal Safety System) prepare the monochromatic beam provided at the sample in the experimental hutch.
| Optical Element |
Description
|
|
Two Copper blocks (water cooled) bored by an ellipsoid hole |
|
|
Aluminium foil or pyrocarbone attenuators and diamond beam viewer |
|
|
Silicon (1 1 1) channel-cut |
|
|
Four blades of Tungsten carbide |
|
|
Silicon toroidal mirror coated with Rhodium |
|
|
Two bricks of lead |



