Sample Environment
EXAFS samples
Cryostats
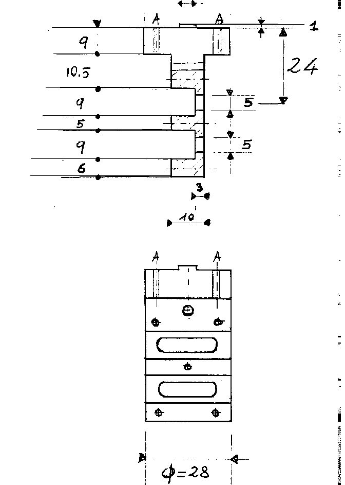
For what concerns EXAFS apparata, users have the choice between a liquid-helium cryostat (T=4-300 K) and a liquid-nitrogen oven-cryostat (T=77-450 K). The dimentions of the related sample holders are shown the pictures below and have to be considered prior to the sample preparation.
Liquid samples
In case of liquid samples GILDA can provide to the user PVC cells for vacuum operation of 500 µl (thickness= 6mm) 250 µl (thickness= 6mm) and 100 µl (thickness= 2mm) that can be cooled down to LNT.
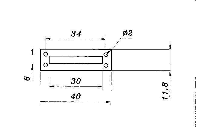
User cells
For those users that wish to install a cell in the second chamber (ex catalitic cells) here we provide a picture with the dimentions useful for the design.
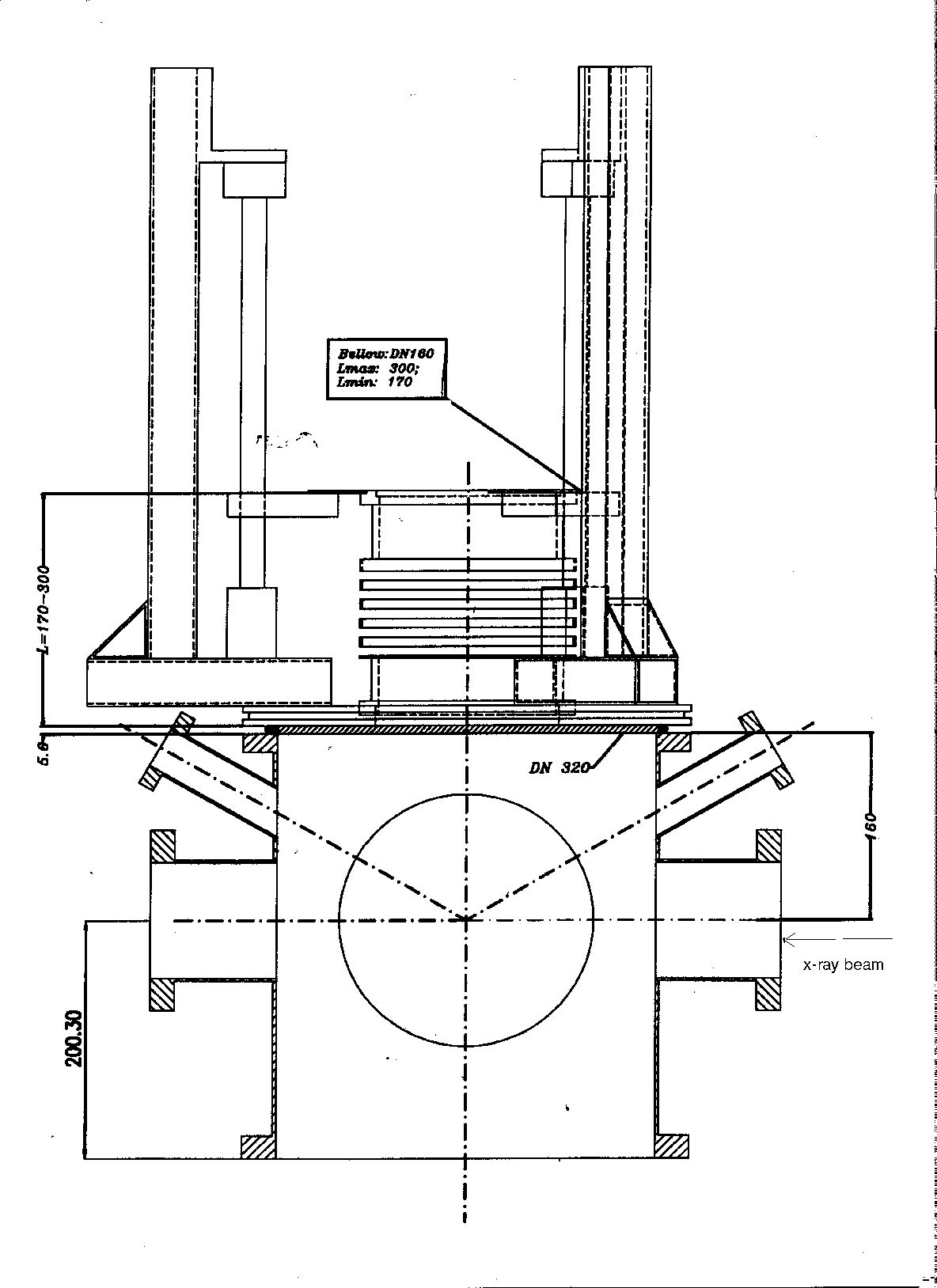
The general purpose XAS chamber with the relative quotes.
Monocrystalline samples
In the XAS study of monocrystalline samples, the orientation of the sample surface to the beam polarization vector can be adjusted ( within 2 deg) and for those samples showing strong problems with Bragg peaks in fluorescence mode a Vibrating Sample Holder (VISAH) has been recently developped (picture below) to minimize these effects.

A picture of the VISAH




