- Home
- Users & Science
- Scientific Documentation
- ESRF Highlights
- ESRF Highlights 2002
- The X-ray Source
- Progress with NEG Coated Insertion Device Vacuum Chambers
Progress with NEG Coated Insertion Device Vacuum Chambers
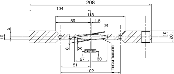
The installation of non-evaporable getter (NEG) coated vessels continued throughout the year. Two additional 2-metre long 11 mm internal aperture aluminium insertion devices were installed on ID13 and ID29. One of them had to be re-activated in order to reduce the Bremsstrahlung radiation in the beamline's experimental hutch. A leak on the ceramic feed-through of the ion pump installed immediately upstream was later identified as the reason for the problem. A few days after re-activation, as the Bremsstrahlung was sufficiently reduced, the beamline ID13 was allowed to operate without further radiation safety constraints. A 5-metre long 11 mm aperture aluminium chamber was installed on ID2. This is working perfectly. The main development of 2002 was the production of a prototype followed by full tests of an 8 mm aperture 5m-long aluminium vessel (see Figure 134). The choice of aluminium instead of stainless steel was made to reduce both manufacturing costs and the excitation of the resistive wall instability. However, raw aluminium presents strong synchrotron radiation induced desorption compared to stainless steel. The conditioning of the prototype chamber installed in May 2002 was so slow and the Bremsstrahlung produced was so high that the chamber was removed immediately after installation. When the same chamber coated with NEG was re-installed in October 2002 a rapid conditioning was observed (half the nominal multibunch lifetime was obtained after 20 minutes of beam at full current). This confirmed, once again, the effectiveness of the NEG coating and the similar desorption of stainless steel and aluminium once a NEG coating is applied. The coating of the tiny 57 x 8 mm elliptical chamber was made at CERN by the EST-SM Group.
![]() |
|
Fig. 134: Cross-section of the 8 mm aperture 5 m-long aluminium insertion device vacuum chamber. |
In 2002 a NEG coating facility was assembled which now allows the coating of 5m-long insertion device vessels (see Figure 135). The facility became operational at the end of 2002. In 2003, it is planned to manufacture several aluminium chambers, to NEG coat them in-house and to then install them on the ring.
![]() |
|
|





